Wohnungsangebote Heidenau Süd

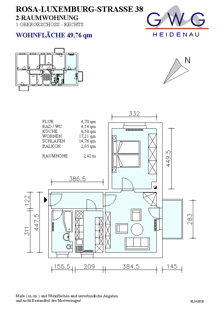
2,0-R-WE - R.-Luxemburg-Str. 38

Details und Kosten:

Straße, Nr.:
R.-Luxemburg-Str. 38

Etage:
EG rechts

Zimmer:
2,0

Wohnfläche:
50,00 m²

Kaltmiete:
310,00 €

Kalte Betriebskosten:
95,00 €

Heizkosten/Warmwasser:
100,00 €

Warmmiete:
505,00 €

Stellplatzmiete:
-

Vermietung ab:
01.12.2025

Energieausweis:

Energieausweis auf Basis:
Energieausweis

Energieverbrauchskennwert:
89 kWh/(m².a)

Energieträger:
H-Gas/Schweres Erdgas, ab 04.2023 Fernwärme

Baujahr des Hauses:
1960

Ausstattung:

Die Wohnung mit Balkon wird bezugsfertig vorgerichtet. Küche mit Fenster. Bad mit Wanne. Wanne mit Duschaufsatz und Wannentür. Zur Wohnung gehört ein Keller.

Kurzbeschreibung:

Einkaufsmöglichkeiten befinden sich in der Nähe. Bus- und Bahnverbindung nach Dresden und Pirna sind zu Fuß zu erreichen.

Download  Alternativgrundriss zum EG als PDF zum Download
 

Dieses Objekt anfragen

Felder die mit * gekennzeichnet sind, sind Pflichtfelder.



Einwilligung*
Top