Wohnungsangebote Heidenau Süd

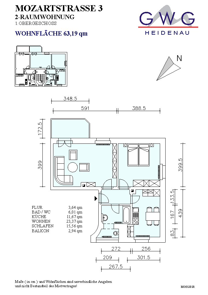
2,0-R-WE - Mozartstr. 3

Details und Kosten:

Straße, Nr.:
Mozartstraße 3

Etage:
1. OG rechts

Zimmer:
2,0

Wohnfläche:
63,19 m²

Kaltmiete:
410,74 €

Kalte Betriebskosten:
75,00 €

Heizkosten/Warmwasser:
135,00 €

Warmmiete:
620,74 €

Stellplatzmiete:
-

Vermietung ab:
01.12.2025

Energieausweis: Denkmalschutz

Energieausweis auf Basis:
-

Energieverbrauchskennwert:
-

Energieträger:
Fernwärme

Baujahr des Hauses:
1913

Ausstattung:

Die Wohnung mit Balkon wird bezugsfertig vorgerichtet. Bad mit Wanne und Fenster. Zur Wohnung gehört ein Keller.

Kurzbeschreibung:

Einkaufsmöglichkeiten befinden sich in der Nähe. Bus- und Bahnverbindung nach Dresden und Pirna sind zu Fuß zu erreichen.

Download Grundriss als PDF zum Download

Dieses Objekt anfragen

Felder die mit * gekennzeichnet sind, sind Pflichtfelder.



Einwilligung*
Top