Wohnungsangebote Heidenau Nord

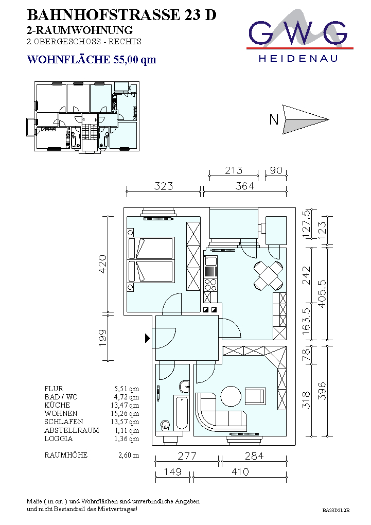
2,0-R-WE - Bahnhofstraße 23d

Details und Kosten:

Straße, Nr.:
Bahnhofstraße 23d

Etage:
2. OG rechts

Zimmer:
2,0

Wohnfläche:
55,00 m²

Kaltmiete:
341,00 €

Kalte Betriebskosten:
90,00 €

Heizkosten:
90,00 € Küche und Bad WW mit Boiler/Durchlauferhitzer

Warmmiete:
521,00 €

Stellplatzmiete:
-

Vermietung ab:
01.02.2026

Energieausweis: Denkmalschutz

Energieausweis auf Basis:
-

Energieverbrauchskennwert:
-

Energieträger:
Fern-/ Nahwärme

Baujahr des Hauses:
1931

Ausstattung:

Die Wohnung wird bezugsfertig vorgerichtet. Küche mit Loggia und kl. Abstellkammer. Bad mit Wanne und Fenster. Zur Wohnung gehört ein Keller.

Kurzbeschreibung:

Einkaufsmöglichkeiten befinden sich in der Nähe. Bus- und Bahnverbindung nach Dresden und Pirna sind zu Fuß zu erreichen.

Download Grundriss als PDF zum Download

Dieses Objekt anfragen

Felder die mit * gekennzeichnet sind, sind Pflichtfelder.



Einwilligung*
Top