Wohnungsangebote Heidenau Gommern

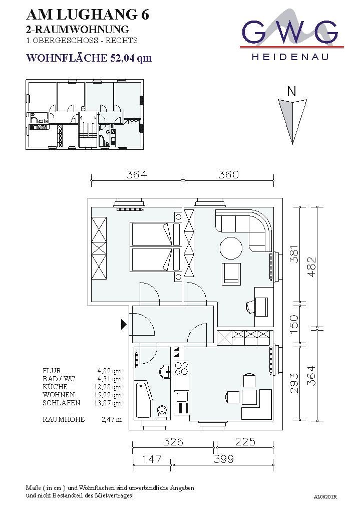
2,0-R-WE - Am Lughang 6

Details und Kosten:

Straße, Nr.:
Am Lughang 6

Etage:
1. OG rechts

Zimmer:
2,0

Wohnfläche:
52,04 m²

Kaltmiete:
307,04 €

Kalte Betriebskosten:
75,00 €

Heizkosten/Warmwasser:
125,00 €

Warmmiete:
507,04 €

Stellplatzmiete:
-

Bezugsfertig ab:
01.02.2026

Energieausweis:

Energieausweis auf Basis:
Energieverbrauch

Energieverbrauchskennwert:
155 kWh/(m².a)

Energieträger:
H-Gas/Schweres Erdgas

Baujahr des Hauses:
1927

Ausstattung:

Die Wohnung wird bezugsfertig vorgerichtet. Bad mit Wanne und Fenster. Zur Wohnung gehört ein Keller.

Das Haus wurde 2025 mit Wärmedämmung ausgestattet.

Kurzbeschreibung:

Einkaufsmöglichkeiten befinden sich in der Nähe. Bus- und Bahnverbindung nach Dresden und Pirna sind zu Fuß zu erreichen.

Download Grundriss als PDF zum Download

Dieses Objekt anfragen

Felder die mit * gekennzeichnet sind, sind Pflichtfelder.



Einwilligung*
Top