Wohnungsangebote Heidenau Gommern

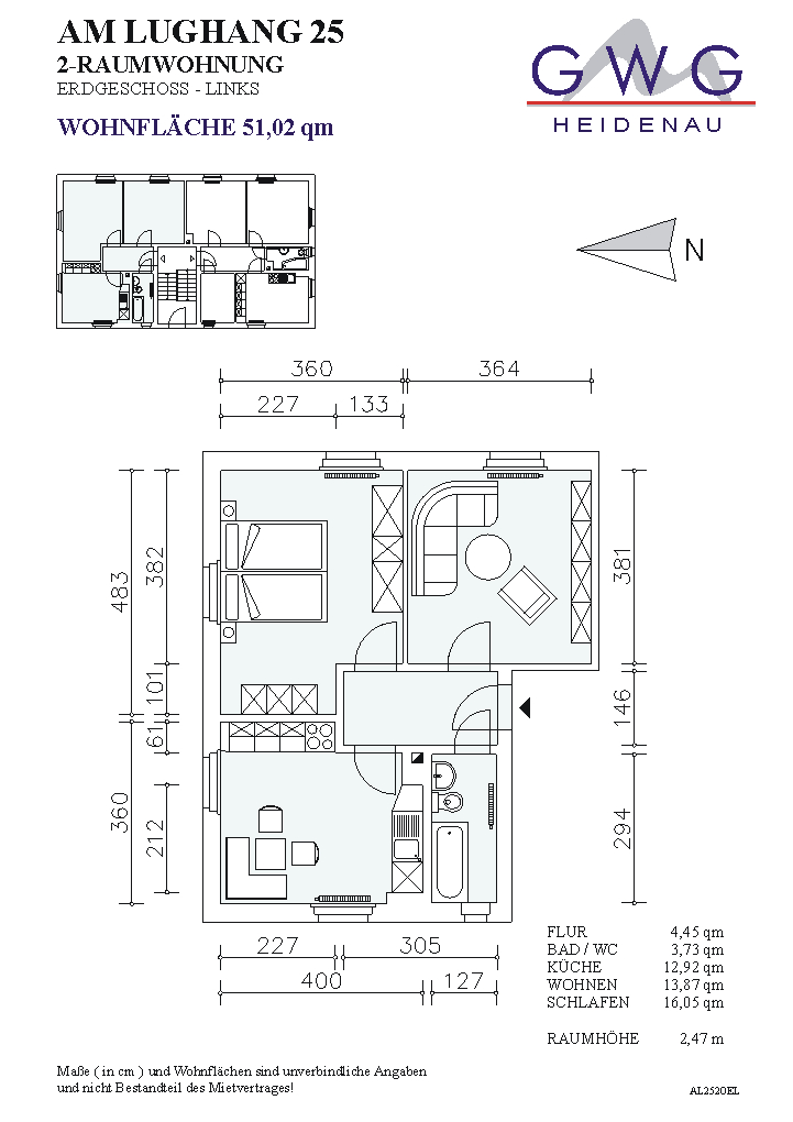
2,0-R-WE - Am Lughang 25

Details und Kosten:

Straße, Nr.:
Am Lughang 25

Etage:
EG links

Zimmer:
2,5

Wohnfläche:
51,02 m²

Kaltmiete:
285,71 €

Kalte Betriebskosten:
6 5,00 €

Heizkosten/Warmwasser:
105,00 €

Warmmiete:
476,16  €

Stellplatzmiete:
20,45 € zzgl.

Vermietung ab:
01.03.2026

Energieausweis:

Energieausweis auf Basis:
Energieverbrauch

Energieverbrauchskennwert:
145 kWh/(m².a)

Energieträger:
H-Gas/Schweres Erdgas

Baujahr des Hauses:
1928

Ausstattung:

Die Wohnung wird bezugsfertig vorgerichtet. Bad mit Wanne und Fenster. Zur Wohnung gehört ein Keller.

Kurzbeschreibung:

Einkaufsmöglichkeiten in der Nähe. Bus- und Bahnverbindung in Richtung Dresden und Pirna sind zu Fuß zu erreichen.

Download Grundriss als PDF zum Download

Dieses Objekt anfragen

Felder die mit * gekennzeichnet sind, sind Pflichtfelder.



Einwilligung*
Top