Wohnungsangebote Heidenau Nord

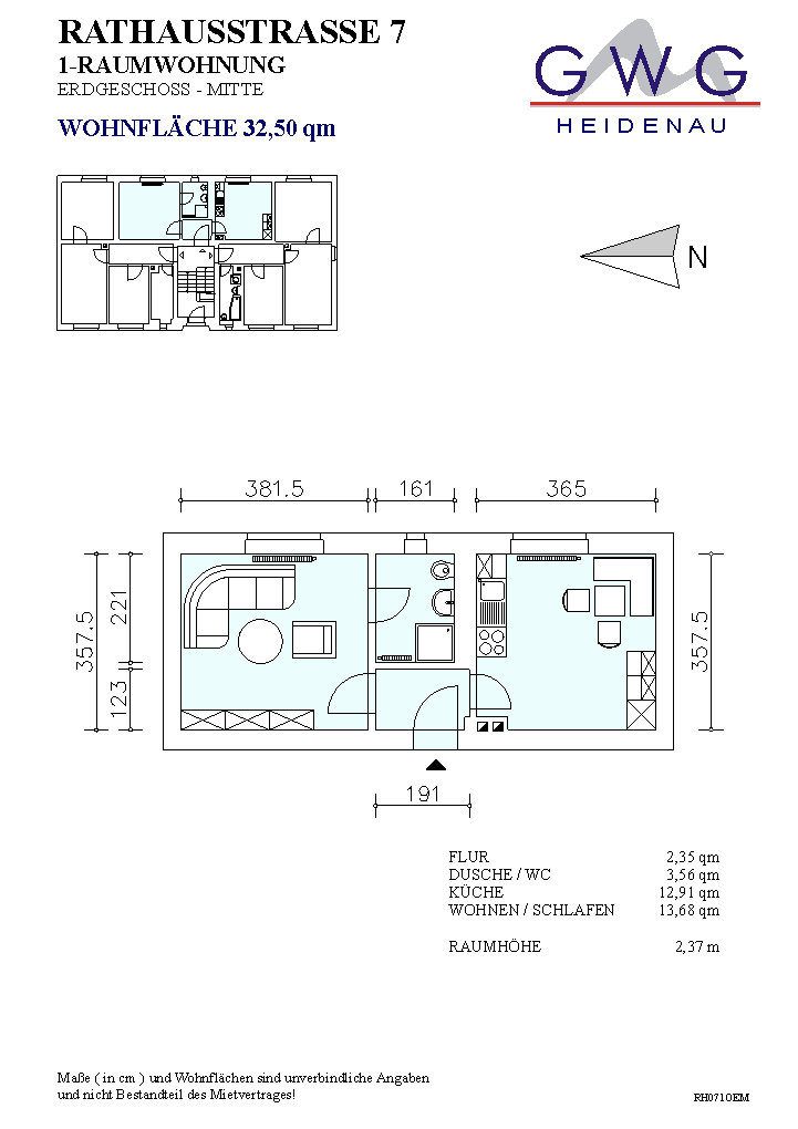
1,0-R-WE - Rathausstraße 7

Details und Kosten:

Straße, Nr.:
Rathausstraße 7

Etage:
EG Mitte

Zimmer:
1,0

Wohnfläche:
32,50 m²

Kaltmiete:
191,75 €

Kalte Betriebskosten:
82,00 €

Heizkosten/Warmwasser:
81,00 €

Warmmiete:
354,75 €

Stellplatzmiete:
-

Vermietung ab:
01.12.2025

Energieausweis:

Energieausweis auf Basis:
Energieausweis

Energieverbrauchskennwert:
118 kWh/(m².a)

Energieträger:
Fern-/Nahwärme

Baujahr des Hauses:
1915

Ausstattung:

Die Wohnung wird bezugsfertig vorgerichtet. Große Küche und Bad mit Fenster. Zur Wohnung gehört ein Keller.

Kurzbeschreibung:

Einkaufsmöglichkeiten befinden sich in der Nähe. Bus- und Bahnverbindung nach Dresden und Pirna sind zu Fuß zu erreichen.

Download Grundriss als PDF zum Download

Dieses Objekt anfragen

Felder die mit * gekennzeichnet sind, sind Pflichtfelder.



Einwilligung*
Top