Wohnungsangebote Heidenau Nord

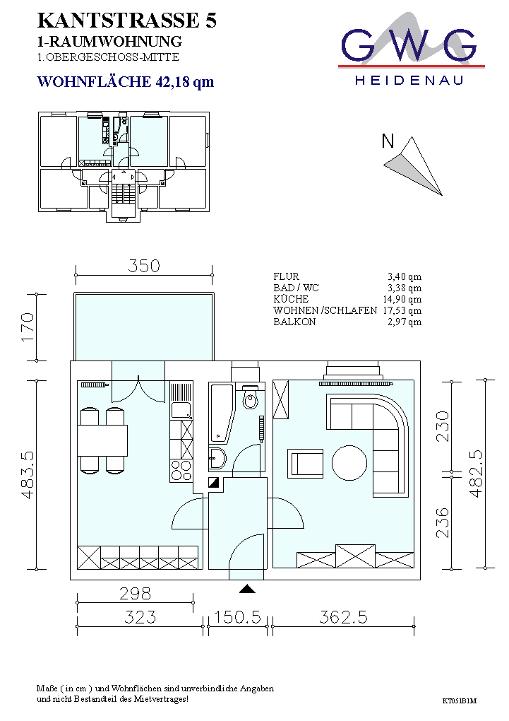
1,0-R-WE - Kantstraße 5

Details und Kosten:

Straße, Nr.:
Kantstraße 5

Etage:
1. OG Mitte

Zimmer:
1,0

Wohnfläche:
42,21 m²

Kaltmiete:
261,70 €

Kalte Betriebskosten:
80,00 €

Heizkosten/Warmwasser :
90,00 €

Warmmiete:
431,70 €

Stellplatzmiete:
-

Vermietung ab:
01.02.2026

Energieausweis: Denkmalschutz

Energieausweis auf Basis:
-

Energieverbrauchskennwert:
-

Energieträger:
Fernwärme

Baujahr des Hauses:
1939

Ausstattung:

Die Wohnung mit Balkon wird bezugsfertig vorgerichtet. Bad mit Wanne und Fenster. Zur Wohnung gehört ein Keller.

Kurzbeschreibung:

Einkaufsmöglichkeiten befinden sich in der Nähe. Bus- und Bahnverbindung nach Dresden und Pirna sind zu Fuß zu erreichen.

Download Grundriss als PDF zum Download

Dieses Objekt anfragen

Felder die mit * gekennzeichnet sind, sind Pflichtfelder.



Einwilligung*
Top